| 產品名稱: | JYN6型移開式金屬封閉開關柜系列手車 | |||||
| 型號規格: | ![]() |
|||||
| 產品類別: | 常規產品 -- 高壓電器 -- 手車系列 | |||||
| 參考價格: | 廠價直銷 | |||||
| 產品品牌: | 國產 | |||||
| 產品產地: | 上海 | |||||
| 可供數量: | 批量 | |||||
| 供貨周期: | 現貨(或電詢) | |||||
|
||||||
| 產品簡介: |
|
|||||
|
序號 |
名稱 |
單位 |
數值 | |
|
ZN28-12C/630-20 |
ZN28-12C/1250-31.5 | |||
|
ZN28-12C/1250-20 | ||||
|
1 |
額定電壓 |
kV |
12 | |
|
2 |
額定電流 |
A |
630/1250 |
1250 |
|
3 |
額定開斷電流 |
kA |
20 |
31.5 |
|
4 |
額定開斷電流開斷次數 |
次 |
不少于30 | |
|
5 |
額定關合電流(峰值) |
kA |
50 |
80 |
|
6 |
動穩定電流(峰值) |
kA |
50 |
80 |
|
7 |
4S熱穩定電流 |
kA |
20 |
31.5 |
|
8 |
一次重合閘無電流間隔時間 |
s |
0.3 | |
|
9 |
合閘時間 |
s |
不大于0.2 | |
|
10 |
固有分閘時間 |
s |
不大于0.06(額定電壓、最高電壓) | |
|
不大于0.08(最低電壓) | ||||
|
11 |
機械壽命 |
次 |
10000 | |
|
12 |
所配操動機構型號 |
CD17、CT19 | ||
|
13 |
一分鐘工頻耐壓 |
kV |
42 | |
|
14 |
全波雷電沖擊耐壓 |
kV |
75 | |
|
15 |
外形尺寸,高×寬×深 |
mm |
1550×690×950 | |
|
16 |
總重量 |
kg |
250 | |
|
序號 |
名稱 |
單位 |
數值 | ||
|
ZN28-12C /630-20 |
ZN28-12C /1250-20 |
ZN28-12C /1250-31.5 | |||
|
1 |
觸頭開距 |
mm |
11±1 | ||
|
2 |
超行程(合閘過程彈簧 壓縮長度) |
mm |
4±1 | ||
|
3 |
觸頭允許磨損厚度 |
mm |
3 | ||
|
4 |
平均合閘速度 |
m/s |
0.55±0.15
|
0.6±0.2 | |
|
5 |
平均分閘速度(接觸油緩沖器前) |
m/s |
1.0±0.3
|
1.1±0.2 | |
|
6 |
三相分閘不同期性 |
ms |
不大于2 | ||
|
7 |
觸頭合閘彈跳時間 |
ms |
不大于3 | ||
|
8 |
油緩沖器緩沖行程 |
mm |
10 | ||
|
9 |
相間中心距單位 |
mm |
230±2 | ||
結構特點
本產品總體結構為手車組裝式,每只滅弧室由兩只懸持絕緣子固定,并由兩根絕緣桿落地支撐,使產品結構穩定。其操動機構、轉軸及傳動機構、分閘彈簧、油緩沖器、聯鎖扒進機構等都統一布置在手車臺架上,便之成為一個有機的整體。
本產品結構簡單、緊湊、合理,有足夠的強度、剛度和穩定性,有較高的絕緣強度,與開關柜配套時,互換性好、導向正確可靠;推進時方便、省力、無沖擊;具有必要的聯鎖功能自由脫扣功能和可靠接地。
本產品采用新型結構的真空滅弧室,其斷流容量大,滅弧能力強,具有壽命長、體積小、維護簡單、無爆炸危險、無污染、噪音低等優點,特別適用于頻繁操作和環境比較荷刻的工作條件。
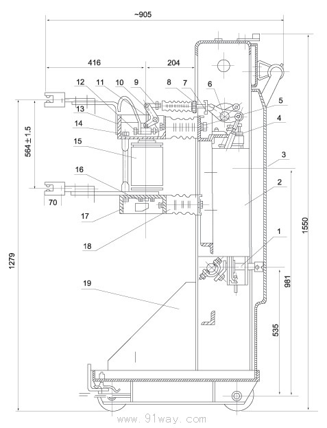
外形及安裝尺寸
產品的結構及外形尺寸見下圖:

1、聯鎖推進機構 2、操動機構 3、脫扣按鈕 4、開距調整片 5、螺栓 6、轉軸 7、觸頭壓力彈簧
8、彈簧座 9、超行程調整螺栓 10、拐臂 11、導向板 12、導電夾緊固螺栓 13、上支架
14、螺栓 15、真空滅弧室 16、真空滅弧室固定螺栓 17、下支架 18、絕緣子 19、臺架