FZN40系列真空負荷開關
FZN40-12/T630真空負荷開關
FZN40-12(D)/T630帶接地開關的真空負荷開關
FZRN40-12/T200真空負荷開關--熔斷器組合電器
FZRN40-12(D)/T200帶接地開關的真空負荷開關--熔斷器組合電器
FZN40-12是應用真空滅弧的原理來實現12kV線路上過載及短路故障保護的真空負荷開關,由于世界各地用戶環保意識的提高,對環境造成污染的產品逐漸被淘汰FZN40-12是取代系列六氟化硫開關的換代產品。
FZN40-12系列真空開關屬于頻繁性使用的開關設備,其機械及電器壽命個別可達10000次以上。
FZN40-12真空開關具備了31.5kA的短路分斷能力(或配熔斷器作組合電器時交接電流/轉移電流為3150kA)及等同于斷路器的保護功能。
FZRN40-12熔斷器組合電器綜合了斷路器可配智能式控制單元,其真空滅弧室高分斷的能力以及熔斷器在大電流短路時反時限速斷的優勢。因此它能似斷路器單獨的多次開斷過載電流,真空滅弧室,也可達到10ms以下的速斷熔斷器,電器壽命長,能配遠操系統,可整定電流特性的智能開關。
·型號含義
FZN40-12□/630-20
││││││││
│││││││└─額定短路開斷電流(KA)
││││││└───額定電流(A)
│││││└──────R為帶熔斷器底座D為帶接地刀
│││││
││││└───────額定電壓(KV)
│││└─────────設計序號
││└──────────戶內
│└───────────真空
└────────────負荷開關
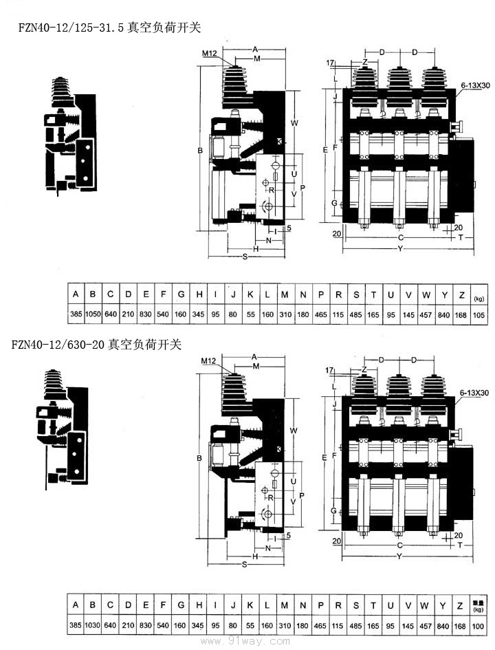
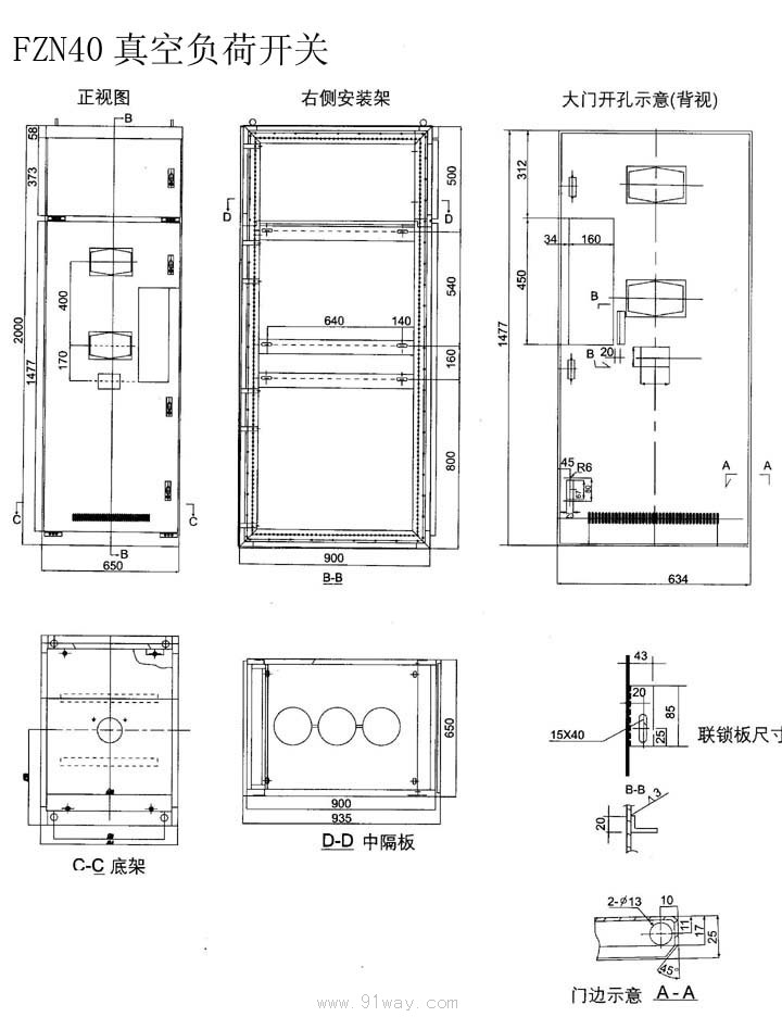
·外形尺寸

·安裝尺寸
