1、概述
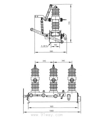
ZW32A-12G型戶外高壓真空斷路器一隔離開關組合電器(以下簡稱組合電器),是三相交流50Hz、12kV的戶外高壓配電設備,用于開斷、關合電力系統中的負荷電流、過載電流和短路電流,更適用于頻繁操作的場所。
組合電器,采用CTB彈簧操動機構,可實現電動儲能、電動分合閘,也可手動儲能和手動分合閘。
組合電器,具有連鎖和明顯可見斷口,操作安全、連鎖可靠。
組合電器的滅弧裝置,采用戶外環氧澆注工藝,將真空滅弧室與電流互感器澆注成一體(固體絕緣相柱組件),立式分相布置,免維護,無油,無氣,無公害。
組合電器,具有合閘涌流控制功能,滿足控制及測量要求,配電子控制單元,可實現“四遙”監控。該產品是城鄉電網無油化改造的首選產品。
2、正常使用條件
a)海拔:不超過2000m;
b)周圍空氣溫度:上限+40℃,下限-40℃;
c)風壓不超過700Pa(相當于風速34m/s);
d)空氣污穢程度(等級),不大于Ⅲ級;
e)超出以上條件的要求,由用戶同制造單位協定。
3、ZW32A-12G型戶外高壓真空斷路器-隔離開關組合電器主要技術參數
3.1 斷路器技術參數:
| 序號 |
參數名稱 |
單位 |
數據 |
| 12.5kA |
16kA |
20kA |
| 1 |
額定電壓 |
kV |
12 |
| 2 |
額定絕緣水平 |
1min工頻耐壓 |
干試 |
相間、對地42,斷口48 |
| 濕試 |
對地外絕緣34 |
| 雷電沖擊耐壓(峰值) |
相間、對地75,斷口85 |
| 3 |
額定頻率 |
Hz |
50 |
| 4 |
額定電流 |
A |
630 |
| 5 |
額定短路開斷電流 |
kA |
12.5 |
16 |
20 |
| 6 |
額定短路關合電流(峰值) |
31.5 |
40 |
50 |
| 7 |
額定峰值耐受電流 |
31.5 |
40 |
50 |
| 8 |
4s額定短時耐受電流 |
21.5 |
16 |
20 |
| 9 |
額定操作順序 |
|
分-0.3s-合分-180s-合分 |
| 10 |
合閘時間/分閘時間 |
ms |
25~50/15~50 |
| 11 |
額定短路開斷電流開斷次數 |
次 |
30 |
| 12 |
機械壽命 |
10000 |
| 13 |
控制回路及輔助回路1min工頻耐壓 |
V |
2000 |
| 14 |
額定操作電壓輔助回路額定電壓 |
DC220;AC220 |
| 15 |
過電流脫扣器 |
額定電流 |
A |
5 |
| 脫扣電流準確度 |
% |
±10 |
| 16 |
觸頭開距/觸頭接觸行程 |
mm |
9±1/2±0.5 |
| 17 |
相間中心距離 |
340±1.5 |
| 18 |
平均合閘速度/平均分閘速度 |
m/s |
0.6±0.2/1.2±0.3 |
| 19 |
觸頭合閘彈跳時間/三相分合閘同期性 |
ms |
≤2/≤2 |
| 20 |
每相回路電阻 |
μΩ |
≤80 |
3.2 隔離開關技術參數:
| 序號 |
參數名稱 |
單位 |
數據 |
| 16kA |
20kA |
| 1 |
額定電壓 |
kV |
12 |
| 2 |
1min工頻耐壓 |
干試 |
相間、對地42,斷口48 |
| 濕試 |
對地外絕緣34 |
| 3 |
額定電流 |
A |
630 |
| 4 |
額定頻率 |
Hz |
50 |
| 5 |
額定峰值耐受電流 |
kA |
40 |
50 |
| 6 |
4s額定短時耐受電流 |
16 |
20 |
| 7 |
雷電沖擊耐壓(峰值) |
kV |
75 |
| 8 |
回路電阻(斷路器接線端子至隔離開關進線板間) |
μΩ |
≤120 |
| 9 |
三相刀閘合閘時,中心偏移量 |
mm |
≤2 |
| 10 |
三相刀閘合閘同期性偏差 |
≤2 |
| 11 |
斷口開距 |
≥200 |
| 12 |
導電部位對地絕緣距離 |
≥160 |

ZW32A-12G型戶外高壓真空斷路器-隔離開關組合電器