ZC-23/23A型沖擊繼電器是一種由電容、二極管、濾波器及干簧繼電器等元器件構成的沖擊繼電器。繼電器可供直流及三相全波整流電源操作的繼電保護及自動控制系統中作集中信號之用。
工作原理:
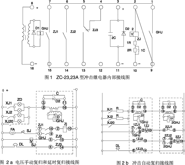
2.1 動作原理: 內部接線示于圖1。
利用一串聯在直流信號回路的微分變流器,將回路中持續的(矩形的)電流脈沖變或短暫的(尖頂的)電流脈沖去啟動靈敏元件,再由靈敏元件去啟動出口中間元件動作,具體工作過程如下:
2.1.1繼電器動作
把端子3與8短接,接電源正,端子11與16短接,接電源負,如圖2A所示,當信號回路給出沖擊信號(電流時),經變流器LB微分后,送入靈敏元件GHJ的線圈,使GHJ動作去啟動出口中間繼電器ZJ,再由ZJ觸點啟動電鈴或電笛發出音響信號,當GHJ線圈上尖頂脈沖過去后,GHJ觸點空載返回,ZJ靠其觸點ZJI進行自保持。
2.1.2復歸過程
按下按鈕FA(或時間繼電器的動斷觸點經一定時間自動斷開。)ZJ線圈斷電,其觸點全部返回,音響信號停止。這時,信號回路電流雖沒有消失,但已達穩定di/dt=0,GHJ的線圈上沒有電壓,故不能動作(也不能保持),這樣繼電器的所有元件都已復歸,準備第二次動作。當信號回路的信號(電流)消失時,由于微分變流器的作用,在靈敏元件GHJ的線圈上產生反向脈沖,此電壓脈沖由二極管DI旁路,故GHJ不動作,整個繼電器也就不能動作。
2.1.3如果需要沖擊自動復歸的回路中,可以利用兩臺沖擊繼電器反串接(具體使用參看圖2b)來實現,但信號回路中必須為線性一電阻的情況下,可實現沖擊自動復歸。

主要技術參數:
3.1 額定電壓(VDC): 220,110。
3.2 ZC-23型沖擊型繼電器最小沖擊動作電流不大于0.16A。
3.3 ZC-23A型沖擊繼電器最小沖擊動作電流不大于0.015A。
3.4 最大穩定電流: ZC-23為3.2A, ZC-23A為0.8A。
3.5 出口中間元件ZJ: 當環境溫度為+20℃,線圈處于冷的狀態時在80%額定電壓下應可靠動作,在不低于5%的額定電壓下應可靠返回。
3.6 在極限溫度(+50℃,-20℃)下,繼電器沖擊動作電流不大于0.2A。
3.7斷開容量: 電壓不超過220V,電流不超過0.2A,(出口中間元件ZJ觸點)斷開容量在直流有感負荷(T=5×10-3s)電路中為40W,在電壓不超過220V,電流不超過0.3A的交流電路中為50VA。
3.8 功率消耗
3.8.1在變流器LB一次繞組通過3.2A電流 時,其功耗不大于7W。
3.8.2 出口中間元件ZJ在額定電壓下,其功耗不大于10W。
繼電器外形尺寸及開孔尺寸:
ZC-23,23A沖擊繼電器為凸出式插拔式結構。
ZC-23,23A沖擊繼電器外形及安裝尺寸見通用型結構系統中的附圖4。
訂貨需知:
注明產品型號、名稱及數量。