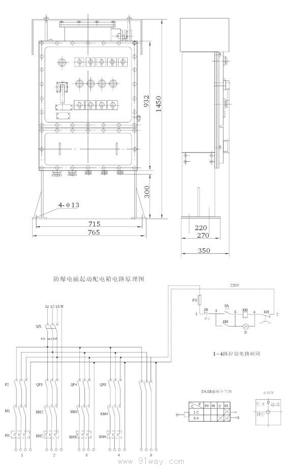
| 產品名稱: | BQD62-400型防爆起動配電箱(ⅡB) | |||||
| 型號規格: | ![]() |
|||||
| 產品類別: | 常規產品 -- 特種電器 -- 防爆配電箱 | |||||
| 參考價格: | 廠價直銷 | |||||
| 產品品牌: | 國產 | |||||
| 產品產地: | 上海 | |||||
| 可供數量: | 批量 | |||||
| 供貨周期: | 現貨(或電詢) | |||||
|
||||||
| 產品簡介: |
|
|||||

|
電源電壓 Supply voltage |
總開關額定電流 Rated current of main switch |
分支路數 Number of branch lines |
防爆標志 Explosion-proof marker |
防護等級 Protection categorys |
|
380V 50Hz |
400A
|
5回路 |
Exd ll BT4 |
IP54 |
BQD62-400 防爆起動配電箱(ⅡB)外形及接線圖: