ZA,ZB,ZC,ZD,ZBW,ZN,ZAW,ZL系列戶內支柱絕緣子(以下簡稱絕緣子)適用于額定電壓(6~35)kV,頻率不大于100Hz的交流系統中運行的電力設備和裝置上,作導電部分的絕緣和支持之用
產品型號及含義
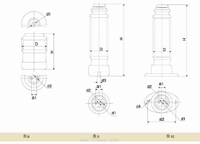
ZN—戶內內膠裝支柱絕緣子;
ZL—戶內聯合膠裝支柱絕緣子:
Z—戶內外膠裝支柱絕緣子;
A、B、C、D—機械破壞負荷等級
Y—圓形底座 T—橢圓形底座 F—方形底座 N—內膠裝上、下附件均為單螺孔者
短橫后面的數字:分子為額定電壓千伏數,分母為彎曲破壞負荷千牛數
產品制造依據
GB8287 高壓支柱瓷絕緣子技術條件
產品使用環境條件
環境溫度不高于+40℃,不低于-40℃
海拔不超過1000m
相對濕度月平均值不大于90%
周圍空氣應不受腐蝕性或可燃氣體、水蒸汽等明顯污穢:
無經常性的劇烈振動
ZA,ZB,ZC,ZD,ZBW,ZN,ZAW,ZL系列戶內支柱絕緣子產品特點
絕緣子由支柱瓷件和兩端金屬附件組成,并采用高強度水泥膠合劑合成一個整體,具有良好的電氣性能和較高的機械強度
安裝和使用
安裝前必須將絕緣子擦拭干凈,螺孔內應涂上防銹油脂
絕緣子可以垂直、傾斜或水平安裝
金屬附件應定期涂漆,防止銹蝕,一般可每年一次
訂貨須知
應指明:絕緣子型號和數量





ZA,ZB,ZC,ZD,ZBW,ZN,ZAW,ZL系列戶內支柱絕緣子