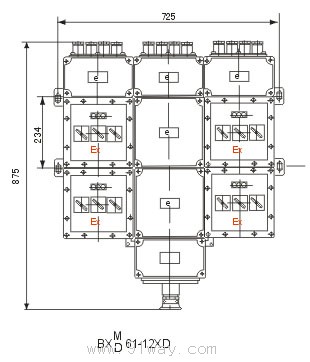
| 產品名稱: | BX(M/D)61防爆(照明/動力)配電箱(ⅡB) | |||||
| 型號規格: | ![]() |
|||||
| 產品類別: | 常規產品 -- 特種電器 -- 防爆配電箱 | |||||
| 參考價格: | 廠價直銷 | |||||
| 產品品牌: | 國產 | |||||
| 產品產地: | 上海 | |||||
| 可供數量: | 批量 | |||||
| 供貨周期: | 現貨(或電詢) | |||||
|
||||||
| 產品簡介: |
|
|||||

|
型號 Type |
額定電壓 (V) Rated voltage |
主回路額定 電流(A) Rated current of main circuit |
支路數 Branch number |
主回路總 開關數(臺) Switch No. of main circuit |
防爆標志 Ex-mark |
管螺紋 Thread |
電纜外徑(mm) Cable’s outer diameter |
防護等級 Protection grade | ||
|
進線 Inlet |
出線 Outlet |
進線 Inlet |
出線 Outlet | |||||||
|
BX□61-4 |
380
220 |
60~250 |
4 |
|
ExedⅡ BT4 |
G11/4"
~ G3" |
G1/2"
~ G11/2" |
Φ18 Φ22 Φ26 Φ30 Φ34 Φ36 Φ18 Φ22 Φ26 Φ30 Φ34 Φ36 |
Φ10
~ Φ22 |
IP54 |
|
BX□61-6 |
6 | |||||||||
|
BX□61-8 |
8 | |||||||||
|
BX□61-10 |
10 | |||||||||
|
BX□61-12 |
12 | |||||||||
|
BX□61-4K |
4 |
1 | ||||||||
|
BX□61-6K |
6 | |||||||||
|
BX□61-8K |
8 | |||||||||
|
BX□61-10K |
10 | |||||||||
|
BX□61-12K |
12 | |||||||||