SLF100磁翻板液位計特點
設計簡單、堅固、緊湊
旁路管和顯示部分在耐壓耐氣上是隔離的
可測量和指示腐蝕性、易燃性、有毒、高溫、攪動的及污染的液體的液位
SL-CFB磁翻柱顯示,不需外加電源
由于采用耐腐蝕性強的材質,可應用于所有工業領域
設計壓力范圍為全真空至420bar
設計溫度范圍為-160℃至+450℃
技術參數
型號:
SL-CFB-../..-M....-V40 x 1- MRA
旁路管: 外徑40x1mm
旁路管頂部: 焊接帽
選 購 件: - 通氣塞BSP1/2” - 通氣閥 - 通氣法蘭
旁路管底部: 法蘭帶排污塞BSP1/2″
選 購 件: - 排污閥 - 排污法蘭
連 接: 旁路側安裝
法 蘭:
DN10 – DN25、PN6、DIN 2631
DN10 – DN25、PN16、DIN 2633
DN10 – DN25、PN40、DIN 2635
DN32 – DN100、DIN 2527
½″ – 4″,ANSI B 16.5
150lb或300lb
螺紋或焊接端
GM/...= 內螺紋/尺寸
GN/... = 外螺紋/尺寸
S...= 焊接端/外徑
中 心 距M: 最小150mm至最大2000mm
材 質: 不銹鋼316Ti(1.4571)
額定壓力: 最大16bar (根據浮子設計)
溫度范圍: 最高150℃ 。ǜ鶕∽釉O計)
浮 子:
型號ZTS35/185
材質 -鈦
比重 -最小800kg/m3 (修改)
壓力 -最大16bar
溫度 -最高150℃
型號ZBS35/120
材質 -丁橡膠
比重 -最小800kg/m3 (修改)
壓力 -最大6bar
溫度 -最高80℃
磁翻柱顯示: 型號MRA – M....
型號:SL-CFB-…/16-M…-PF63x3-MRA
型號:SL-CFB-…/16-M…-PP63x3-MRA
型號:SL-CFB-…/16-M…-P63x3-MRA 旁路管 外徑63x3mm
旁路管頂部: 焊接帽
選 購 件: - 螺紋配件 - 通氣閥 - 通氣法蘭
旁路管底部: - 螺紋配件
選 購 件: - 排污閥 - 排污法蘭
連 接: 旁路側安裝
法 蘭:
DN15 – DN50、PN16
尺寸:ISO/DIN
½″ – 2 ″,ANSI B 16.5,150Ib
尺寸:ANSI B 16.5
材質:UP-GF
中 心 距M: 最小200mm至最大4000mm
材 質: PVDF、PP或PVC-U
額定壓力: 最大4bar
溫度范圍: PVDF 最高80℃
PP 最高60℃
PVC 最高40℃
浮 子: 型號Z..S…
PF…=材質PVDF
PP…=材質PP
P…=材質PVC-U
浮子長度根據比重
磁翻柱顯示: 型號MRA – M….
選型提示
如需選購磁翻板液位計需詳細確定以下參數:測量介質,安裝方式,接液介質,過程連接方式,公稱壓力,中心距,工作溫度,輸出信號,是否需要防爆,量程。
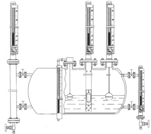
安裝示意圖
